江苏欧西盾科技有限公司
免费热线:400-685-3699
联系电话:0517-87693333
联系地址 :江苏省淮安市洪泽经济开发区开拓路9号
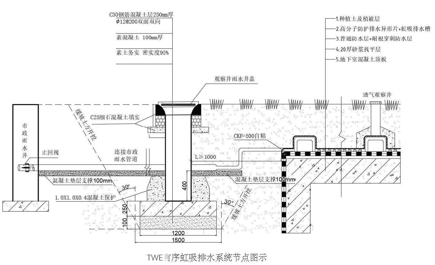
1、土壤下渗水持续向下渗透,通过高分子防护异型片流至虹吸排水槽内。
2、在虹吸排水槽上安装通气管,虹吸排水槽内的水在空隙、重力和通气的综合作用下不断向出水口处汇集。
3、出水口通过管道变径的方式,使雨水在虹吸直管形成满流,从而形成虹吸,虹吸排水槽内的水不断被吸入观察井。
4、经观察井沉淀,排入有序虹吸排水系统,待晴天需要对绿化植物进行浇灌时再对雨水进行循环利用,从以往的被动排水转变成了现在的主动式排水,从而真正实现了零坡度、有组织排水。
